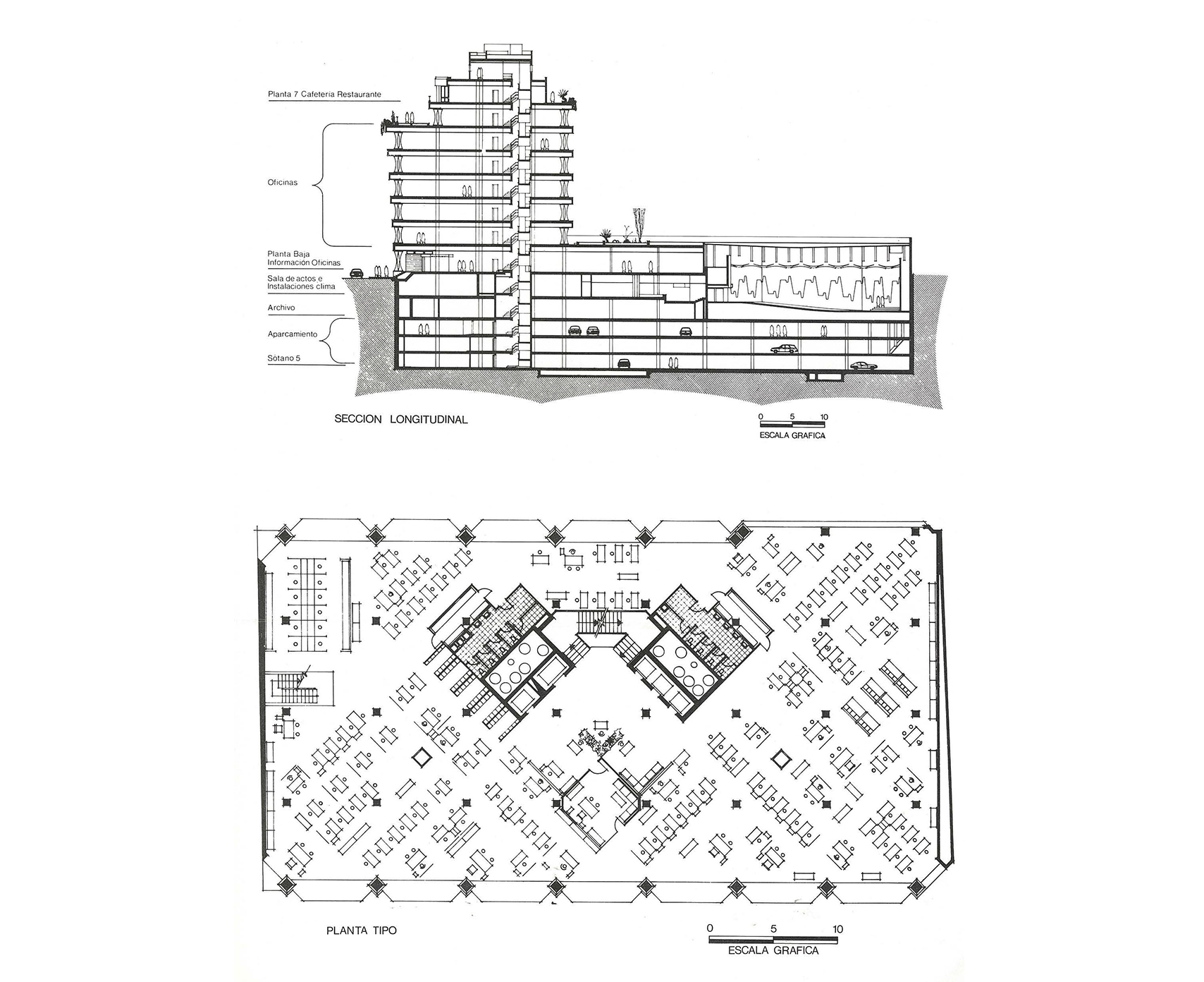
portadasocial-security-building

Edificio de la Seguridad Social, Barcelona (España).

Edificio de la Seguridad Social

Año: 1992

Ubicación: Barcelona (España)