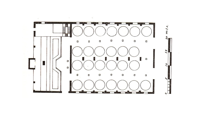
Bodega en Nulles
Año: 1918
Ubicación: Nulles (España)
Descripción: Este edificio es uno de los máximos exponentes del movimiento modernisTa, destaca no sólo por su belleza, sino por reunir todas las cualidades necesarias para la elaboración de vino. Se destacan tres grandes pilares que definen su lenguaje arquitectónico: la funcionalidad, el gusto por la tradición constructiva rural y la utilización de soluciones estructurales de gran proyección. De ahí la utilización de materiales autóctonos como la cal y la arcilla que pueblan las viñas, consiguiendo así que el edificio se mimetice y se integre con el entorno rural. El elemento más característico es el arco parabólico, el cual favorece el paso de la luz y proporciona un espacio amplio y funcional así como de una gran belleza estética. Se busca el equilibrio del edificio; “las formas equilibradas son las que exhiben la belleza en sí mismas”. Térmicamente, el edificio hace la función de paraguas que combinado con las tinas aportan al vino la estabilidad necesaria.
