Bodega en Sant Cugat del Vallès
Año: 1921
Ubicación: Sant Cugat del Vallès (España)
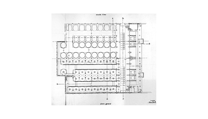
Descripción: El edificio original está formado por dos partes principales: el patio de vertido y las tres calles de toneles. El patio de vertido es un cuerpo porticado con cubierta de bóveda a la catalana que descansa sobre unos arcos construidos con ladrillo aplantillado. Las calles de toneles estan situados en una gran nave rectangular y su cubierta descansa en unos arcos parabólicos de madera. Se construye con obra de fábrica la mayor parte del edificio, incluyendo la decoración de los respiradores de los toneles en la parte exterior y un friso que recorre la fachada.
